ТОО "Управляющая Компания К-1" трансформаторы, подстанции,
- 07/09/2015
- Казахстан, Алматы
- Строительные работы
- Предложения фирм
Блочно-модульные подстанции
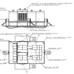
БКТП: конструкция и применение
Блочно-модульные подстанции представляют из себя отдельно стоящее сооружение из одного до пяти блоков. Количество блоков зависит от количества трансформаторов, устанавливаемых в БКТП.
Оборудование предназначается для приема, преобразования, распределения трехфазного эл. тока.
Конструкция может быть выполнена из различных материалов: сэндвич-панели, металл, железо-бетонные блоки.
Блоки подстанции комплектуются электротехническим оборудованием:
силовыми трансформаторами;
распределительным устройством стороны высшего напряжения (УВН);
распределительным устройством стороны низшего напряжения (РУНН);
устройством АВР на стороне НН (для двухтрансформаторных подстанций, по дополнительному заказу);
шкафом наружного освещения;
шкафом учета электроэнергии (ШУ);
шкафом тепловой защиты и вентиляции (при установке трансформаторов ТСЛ);
соединительными кабелями, шинами и проводами;
индивидуальными устройствами защиты от поражения электрическим током (по дополнительному заказу).
Возможна комплектация подстанций масляными трансформаторами ТМ, ТМГ, ТМЗ или сухими: ТСЛ, ТСГЛ.
Помещения подстанций вентилируются естественным образом — через железные решетки.
Требуется соблюдение следующих условий:
температурный режим установки: от -45 °С до 40 °С
допустима установка на высоте, соответствующей уровню моря не более 1000 м;
отсутствие опасности взрывов и возгорания;
отсутствие в атмосфере токопроводящих частиц, химически активных газов и испарений;
сейсмические характеристики местности: до 7 баллов по шкале Рихтера.
Двухтрансформаторные подстанции БКТП перевозятся на объект посредством автомобильного либо железнодорожного транспорта в разборном виде.
Однотрансформаторные подстанции поставляется на объект в полностью готовом виде.
Отделка подстанций, производимая внутри и снаружи сооружения, зависит от условий конкретного заказа.






